Planung Neubau Mehrfamilienhäuser in Oranienburg

2020 - heute

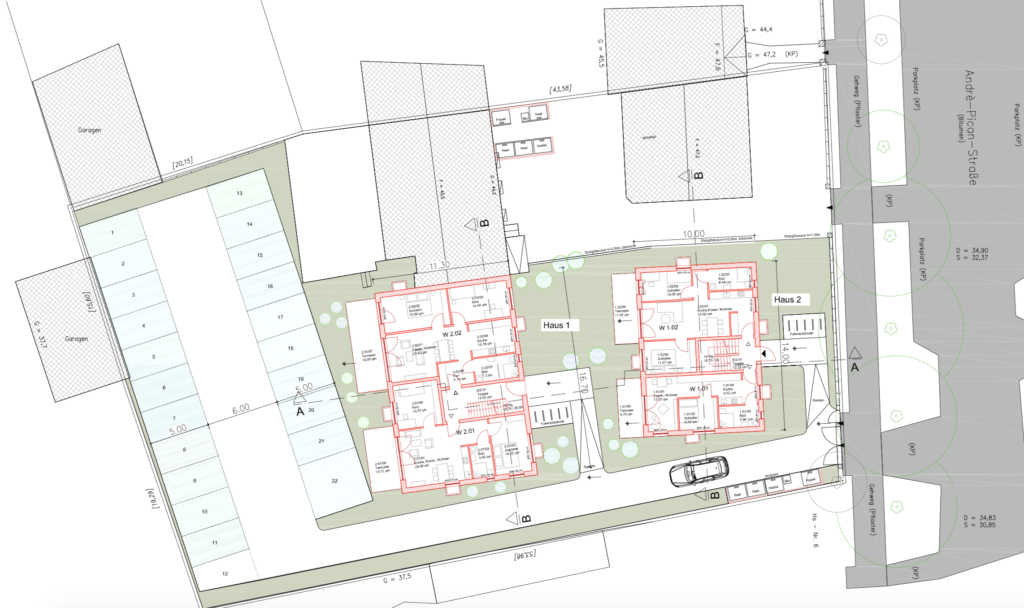
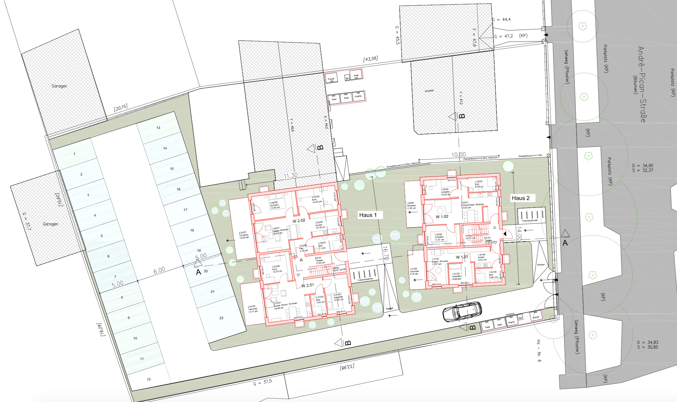
In Oranienburg – André-Pican-Straße wird neue Wohnanlage bestehend aus zwei Mehrfamilienhäuser gebaut.

Projektvolumen
ca. 9 Mio.

Bearbeitungstiefe
Planung / Projektmanagement / Bauherrenvertretung

Auftraggeber
DAM Immobilien